Iglesia parroquial de Valverde

De Xilocapedia
Ir a la navegación Ir a la búsqueda
Vista general
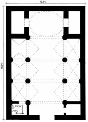
Plano de la iglesia

Templo de Valverde, con tres naves cubiertas por bóveda con medio cañón y lunetos, salvo la nave de la epístola, que se cubre con bóvedas de arista. La nave central, de mayor anchura, se prolonga en la capilla mayor, que es de perímetro rectangular y se cubre con cúpula elíptica vaída. Las bóvedas apoyan en pilares octogonales. El exterior, de mampostería, muestra un solo volumen para las tres naves. La torre, a los pies en el lado de la epístola, es de dos cuerpos de planta cuadrada. La portada en el muro de los pies está formada por un gran arco que cobija la clásica composición de dos cuerpos, tan habitual en el barroco popular de la zona: cuerpo bajo adintelado entre pilastras y cuerpo superior con hornacina entre óculos. No se tienen datos documentales sobre la construcción, pero una inscripción en la portada "29-Enero-1760" nos da una pista sobre su posible terminación. En cualquier caso en 1771 ya estaría concluida.


Elementos destacables

Los retablos son numerosos:

De mediados del XVI guarda una cruz procesional en plata sobredorada realizada en Daroca. Junto a ella aparece una custodia rococó realizada a finales del XVIII en Zaragoza, quizás en el taller de Blas Castillo.

Bibliografía

  • Carreras Asensio, José María (2003): Noticias sobre la construcción de iglesias en el noroeste de la provincia de Teruel. Siglos XVII-XVIII. Calamocha, Centro de Estudios del Jiloca.