Iglesia parroquial de Villalba de los Morales
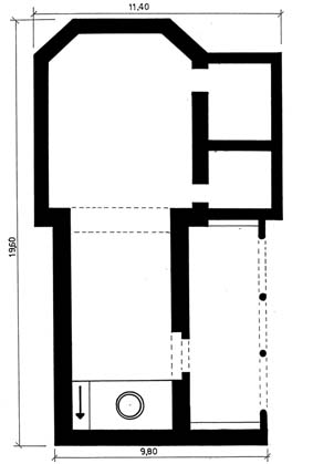
Iglesia parroquial San Jaime de Villalba de los Morales es un templo barroco que sufrió una profunda reforma en 1965. Construcción de una sola nave en dos tramos, de mampostería y ladrillo, con cabecera poligonal y espadaña a los pies. Conserva la entrada por el lado de la Epístola. Reformada profundamente en 1965, se le añadió un pórtico. Sobre su construcción disponemos únicamente del dato de que en 1666 se había dedicado el impuesto de la Primicia para la fábrica de la Iglesia, sin que sepamos la naturaleza de las obras. En los pies se sitúa una cruz de forja y una veleta con la fecha de 1882.
Elementos destacables
En el interior destaca una imagen románica de la Virgen con el Niño, del siglo XIII, y las tablas góticas con imágenes de San Bartolomé, Santa Lucía, Santa Bárbara y el Calvario, fechables en el siglo XV.
Bibliografía
- SEBASTIAN LOPEZ, Santiago (1974): Inventario artístico de Teruel y su provincia. Madrid, Ministerio de Educación y Ciencia.
